VERKAUFT

70 m2

8 m2

3

1975

E

1
Objekt-Nr.
2-449
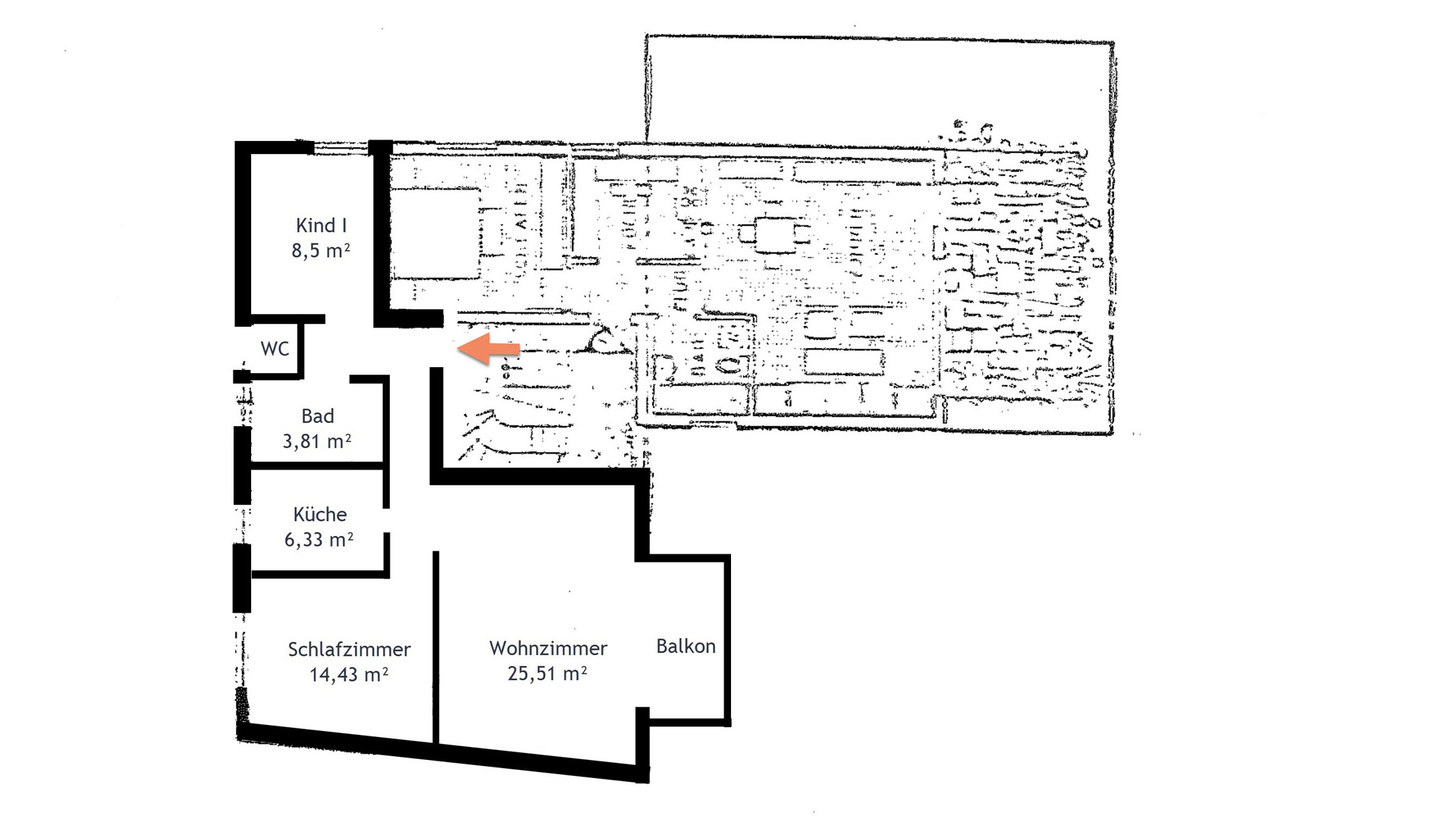
Wohnfläche
70 m2
Nutzfläche
8 m2
Baujahr
1975
Zimmer
3
Kaufpreis
siehe Exposé
Käuferprovision
3,57 % inkl. MwSt.
Energieausweis
Angaben zum Energieausweis
Effizienzklasse
E
Energieausweisart
Bedarfsausweis
Befeuerungsart
Erdgas
Baujahr
1975
Endenergiebedarf
150.5 kWh(m² a)
Primärenergiebedarf
165.5 kWh(m² a)
