Mit Blick zum Himmel und Natur: EFH in Reichshof-Hahn mit Wintergarten und Terrasse






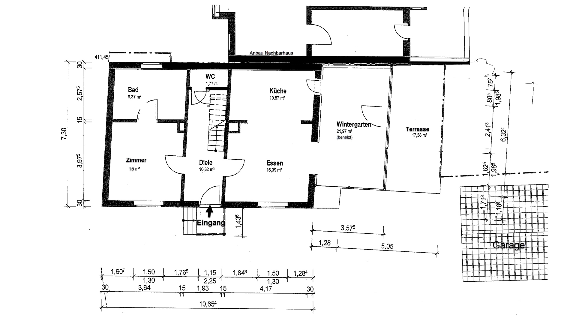
Es handelt sich hier um ein preiswertes, vollunterkellertes, massives Einfamilienhaus mit Garten, Garage und Saunahaus in ruhiger, ländlicher Umgebung von Reichshof Hahn. Das Haus zeichnet sich besonders aus durch seine gemütliche, offene Wohn-/Essküche (27 m²) mit angrenzendem, beheiztem Wintergarten (22 m²) und herrlicher Terrasse (17 m²) daran. So kann man hier das ganze Jahr mit Blick zum Himmel und in die Natur leben. Noch letztes Jahr wurde - als verkaufsvorbereitende Maßnahme - das Wohnhaus im derzeitigen Zustand (inkl. Wintergarten) genehmigt und das Grundstück von dem hinten angrenzenden Nachbarhaus der Tochter separiert. Die Immobilie befindet sich im guten, gepflegten und größtenteils modernisierten Zustand, ist nicht mehr bewohnt und kann nach einer normalüblichen Renovierung sofort bezogen werden.
Grundstücksbeschreibung / Mikrolage (direkte Umgebung)
Das 651 m² große Grundstück wurde erst kürzlich neu vermessen und speziell zum Verkauf des Elternhauses aufgeteilt und separiert. Es besteht hauptsächlich aus der langen Garagenzufahrt und der daran angrenzenden Rasenfläche, der frühere große Nutzgarten. Da es sich hier um ein Dorfmischgebiet handelt, kann die Wiese noch beliebig bebaut werden (z.B. mit einer Werkstatt, Remise, Carport oder Garage etc.) Unterhalb des Garagenhauses befindet sich ein größeres Holz-/ Gartenhaus, welches als uriges Saunahaus genutzt wurde. Weiter unten grenzt das Grundstück an einen Natur-/ Kinderspielplatz.
Das Haus befindet sich in einer ruhigen, engen Anliegerstraße von Reichshof-Hahn, welche zu einem Bauernhof führt und nach ca. 200 m in einen idyllischen Feld-/Wirtschaftsweg übergeht. Das kleine Dorf liegt versteckt in der Oberbergischen Landschaft in einer herrlichen Höhenlage, ca. 400 m ü.NHN.
Makrolage/Entfernungen jeweils vom Objekt:
In dem ca. 167 Einwohner-Ort gibt es keine Einkaufsmöglichkeiten. Besonders erwähnenswert ist hier jedoch die gute und schnelle Autobahnanbindung:
- A4 Abf. Nr. 27 "Reichshof Eckenhagen": nur 4,5 km (6 min), nach Köln ca. 64 km/45 min, oder Olpe 18 km/20 min Fahrzeit. Weiterer Anschluss an die A45 (Sauerlandlinie): Autobahnkreuz Olpe Süd, ca. 15 km
- Einkaufsmöglichkeiten: Wildbergerhütte 5,1 km / 7 Minuten - Eckenhagen 9 km / 11 Minuten
- Schulen: Grundschule Wildbergerhütte ca. 6,2 km, ein Schulzentrum mit weiterführenden Schulen befindet sich in Eckenhagen (ca. 10 km) und in Waldbröl (ca. 17 km)
- Kindergarten: in Heidberg, ca. 1,8 km (3 min)
- Pferdehof mit Reithalle im benachbarten Reichshof-Hahnseifen (ca. 1,1 km)
- Gemeindeverwaltung Reichshof: Rathaus Denklingen ca. 15 km
- ärztliche Versorgung: Zwei Arztpraxen und ein Zahnarzt in Wildbergerhütte (ca. 5 km), großes Kreiskrankenhaus in Waldbröl (ca. 17 km) und in Olpe (18 km)
- Busverbindung: Bushaltestelle in Heidberg (1,7 km)
- Bahnanbindung: Bahnhof in Gummersbach-Dieringhausen (22,8 km)
- nächstgelegener Flughafen: Köln/Bonn Airport (61 km)
- nächstgelegene Städte: Waldbröl 17 km, Olpe 18 km, Gummersbach 25 km, Siegen 27 km, Köln 64 km
Ausstattung:
GRUNDSUBSTANZ:
- solide, massive Bauweise mit Bimssteinen, ursprüngliches Baujahr 1930
- 1963 von den jetzigen Familie erworben, umgebaut und erweitert
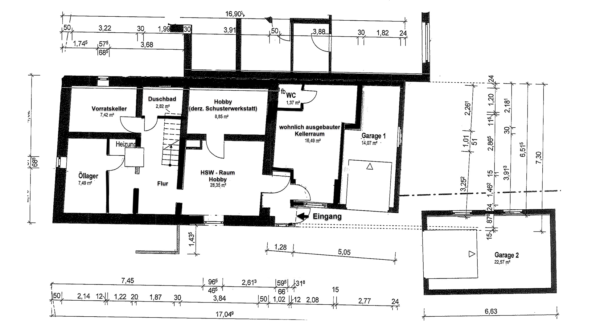
- vollunterkellert
- isolierverglaste Kunststofffenster
- Öl-Zentralheizung Baujahr 1988, Brenner Baujahr 1999
- massive Garage, Baujahr 1994
- Garten-/Saunahaus, Holzbauweise Baujahr 1966
INNENAUSSTATTUNG:
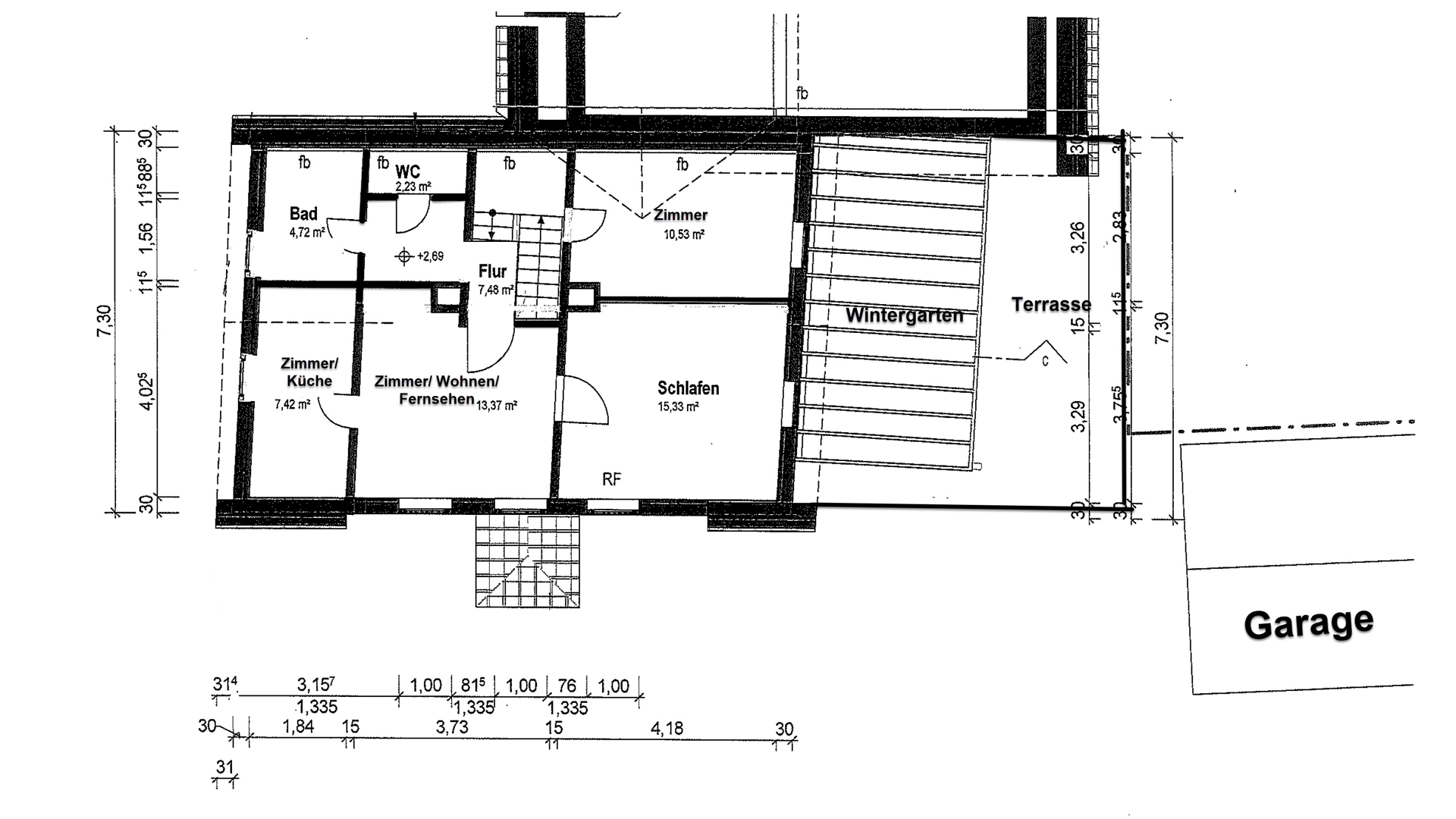
- 133 m² Wohnfläche auf zwei Etagen
- EG: Eingangsdiele mit Garderobe und Gäste-WC, Wohnküche, Wintergarten (als Wohnzimmer genutzt), Terrasse, sowie Zimmer (15 m²) mit angrenzendem Bad (Baujahr 2017, mit ebenerdiger Dusche)
- DG: 3 Zimmer, Flur, Wannenbad, WC
- Küche und weiteres Inventar können übernommen werden
- teilweise ebenerdig begehbare, beheizte und für Hobbyzwecke wohnlich ausgebaute Kellerräume
SONSTIGE AUSSTATTUNG:
- Gartenhaus mit Sauna
- 2 Garagen (eine davon nur für Motorräder geeignet)
- Satellitenschüssel mit Fernsehanschlüssen in fast allen Zimmern
- kühler Vorratskeller
- Highspeed Internet, bis 250 MBit/s möglich, lt. Telekomrecherche
Unterhaltungs-/ Verbrauchskosten 2025:
- Grundsteuer: 246,02 €
- Winterdienst: 29,28 €
- Wohngebäudeversicherung 2026: 473,79 €
- Schornsteinfeger: 52,85 €
- Müllabfuhr 2026:
Restabfallbehälter 120 Liter = 252,00 €
Papierabfallbehälter 240 Liter = 9,60 €
Bioabfall / Eigenkompostierung
- Heizöl Betankung in:
2024: - 3.558 Liter
2023: - 3.379 Liter
2022: - 2.898 Liter
Eine Finanzierung für dieses Haus mit 50.000 Eigenkapital könnte wie folgt aussehen:
- Finanzierung, ca. 10 %-Eigenkapitalanteil = 18.000 €
- Kaufnebenkosten: (Grunderwerbsteuer 6,5 %, ca. Notar 1,0 %, Gerichtskosten 0,5 %, Provision 3,57 %) = 21.000 €
- Renovierung / Umzugskosten = 10.000 €
ergibt:
- 90 % Finanzierung = 161.000 € Immobilienkredit
- Zins: 4,0 % Tilgung: 2,0 %
= monatliche Rate: ca. 800 €


